NAVIS TUBETEX MATRIX STENTER
In our quest to improve the overall range performance, the team at Navis TubeTex began with a fresh start – ready for a new approach and design direction. After extensive research and engineering efforts, we developed the revolutionary and unique Matrix Stenter models. The difference is in the details.
NAVIS PLANATEX MATRIX METAL IR GAS PRE-DRYER
The Navis PlanaTex Matrix Metal IR Gas Pre-Dryer utilizes a high-efficiency radiant gas burner. Processors can specify the size and location of the pre-dryer based on individual stenter range applications.
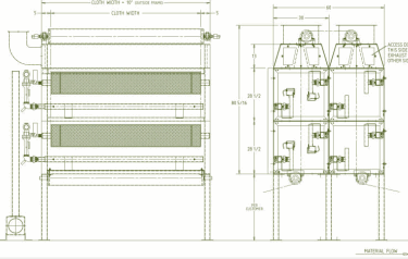
MATRIX HOT FLUE
The precise airflow and temperature control of the Matrix Hot Flue ensures all applications perform as required. The highly efficient insulated panels and precise exhaust control minimize energy usage.
The Matrix Hot Flue both increases dye yield and enhances color development, and simultaneously minimizes off-shade problems. Fabric is laced vertically over thick walled rolls and sized to each specific application.



